
휴대전화상담
(주)포레스트 알브이 코리아
대표이사 민 병 로
010 - 2629 - 4000
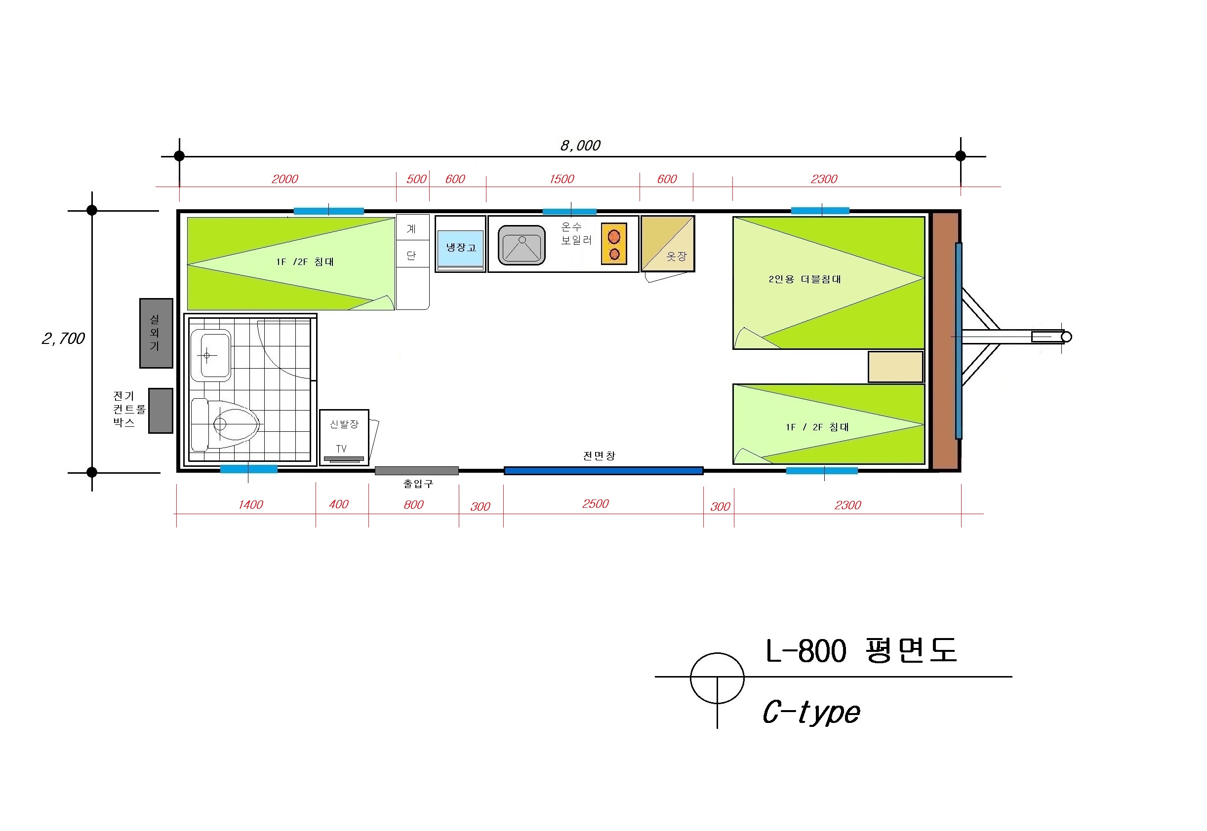
W 800 (6~7인용)



제 원 표
구 분 | W 800 | |
외부 길이*너비*높이 / mm | 9,300 * 2,700 * 3,200 | |
본체 길이*너비*높이 / mm |
| |
실내 길이*너비*높이 / mm | 8,000 * 2,600 * 2,000 | |
축간거리 / mm |
| |
윤간거리 / mm |
| |
차축 | 1축 | kg |
2축 | kg | |
축 총하중 | kg | |
타이어규격 |
| |
림(휠) 형식 |
| |
견인장치 | 2인치(50mm) 히치-볼 커플러 형 | |
주차 브레이크(1축) |
| |
차량 총 중량 /kg | 3,000 | |
취침인원 | 6~7 인용 | |
상세 사양표
실내
구 분 | 내 용 | 사 양 | 비 고 |
차 체 | 새시 프레임 | 아연도금 각관 |
|
현가장치 | 1 Axle 구조, 판 스프링, 텐텀구조 |
| |
등화장치 | 미등, 방향지시등, 제동등 |
| |
본 체 | 지붕판/전,후면 | 유선형 복합단영 소재(FRP), GRP 패널 |
|
측면판 | GRP 양면복합패널, 골드폼 단열재 |
| |
바 닥 | PU복합패널, 전기온수보일러, 열방사판 | 3T 골드륨 장판 | |
실 내
시 설 | 거 실 | 쇼파구조 or 식탁구조 |
|
침 실 | 1인용 2층침대, 더블침대 배치, 4명취침 |
| |
주 방 | 인조대리석상판, 씽크볼, 렌지후드, 식기전조대, 상 하부수납장 |
| |
화장실 | 세면기, 수세식변기, 냉 온샤워겸용 수전거울,액세서리 | 세면기, 변기 : (국산) 대림 | |
가 구 | 옷장, 신발장, 상하부 수납장, 다용도 선반 |
| |
가 전 | TV32", LG냉장고(90L), 전기인덕션 전자레인지, 온수기(50L), 냉방기, 난방기 | TV : 삼성 or 엘지 에어컨 : 냉난방 겸용 | |
설 비
장 치 | 설 비 | 15mm 급수관, 50mm/100mm배관 동파방지시설(열선, 컨트롤러) |
|
전 기 | 외부 220V입력전원, 매립형 2구콘센트 |
| |
조 명 | 전체 절전형 고효율 LED조명 |
| |
외 부
장 치 | 출입문 | 카라반 도어(전망창) |
|
창 문 | 슬라이드식 강화 글라스창, 결로방지구조 슬라이드형 방충망, 고급커튼 |
| |
지지대 | 조절식 아웃트리거 지지대 |
| |
외 관 | 백색 기본컬러, 디자인 데코시트(로고 등) |
|
외장
구 분 | 내 용 | 비고 |
어닝 | 수동식 3000 * 2000 | 옵션 |
주차방식 | 주차용 고정식브라켓(체결용) / 높이조절식 아웃트립 |
|
창호 | 출입문 1개 / 거실창 1개 / 주방창 1개 / 이층침실창 2개 |
|
전면침실창 1개 ( 2중페어 픽스형), 대형 외부 출입 가능 창 |
| |
벽체 | 50mm GRP골드폼 판넬 |
|
전/후 외장 | 인퓨젼공법 열처리 FRP |
|
프레임 | 아연각관 2중구조 프레임 |
|
현가장치 | 4엽 더블아이 1,136kg(개당) |
|
스탠드 잭 | 스위블 형 하중 500kg |
|
기타 | 겨울철 결로 방지를 위한 덕트 시스템 |
|
국내제조 카라반 도로주행 테스트

회사명 : 포레스트RV코리아/ 사업자등록번호: 128-86-72280 / 대표: 민병로/ 개인정보관리책임자: 민병로
본사 : 경기도 고양시 일산서구 이삼포길 262
TEL : 031-925-5788 / Fax : 031-914-5788 / Email: brm4000@naver.com
COPYRIGHT (C) 2019 1001 FOREST RV KOREA. ALL RIGHTS RESERVED.